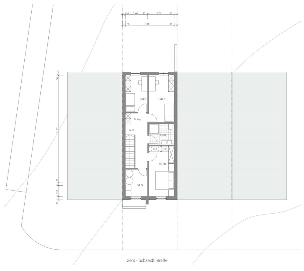
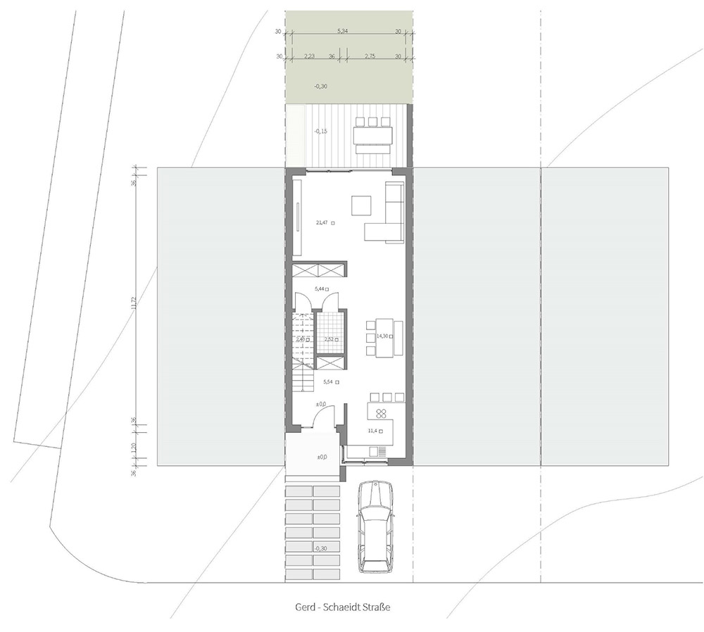
Investoren Wettbewerb Reihenhaus Filsch
Ein schmaler Grundriss muss kein Nachteil sein: das zeigt unser Erstplatzleger beim Investorenwettbewerbs für ein Reihenhaus. Statt Enge setzten wir auf klare Linien, durchdachte Raumabfolgen und flexible Grundrisse den Bewohnern Freiheit in der Nutzung geben. Das Ergebnis ist ein urbaner Wohnraum, der schlank wirkt, aber erstaunlich viel Raumgefühl bietet.
Smart, elegant und perfekt für moderne Stadtbewohner.
